91香蕉视频污在线I97超在线I久久国内精品视频I成人教育avI久久久久久片I怡红院avI91视频在线观看免费I精久久久久

武漢凱迪正大

全國免費服務熱線

400-027-3099
凱旋思想,啟迪新人生!

TRIUMPH THOUGHT,INSPIRE NEW LIFE!

當前位置當前位置:首頁 > 新聞中心 > 技術資料

串級式高壓試驗變壓器的好處以及接線方法

作者:來源:武漢凱迪正大電氣有限公司日期:2020-06-15 10:25:00閱讀:

串級式高壓試驗變壓器主要特點整個試驗裝置由幾臺單臺試驗變壓器組成,單臺試驗變壓器容量小、電壓低、重量輕,便于運輸和安裝。
凱迪正大認為對于高電壓等級下的試驗變壓器,更經濟結構更簡單。由于串級由多個單臺試驗變壓器組合而成,可單獨升壓,避免一臺故障整套不能使用的尷尬局面。
 
 
串級試驗變壓器的優點
(1)不會出現單個變壓器電壓過高的現象,且對于絕緣結構的制作相對簡單方便,材料用價極為便宜。另外,由于單件結構處于整體較輕的狀態,所以也不會造成試驗變壓器得到整體過重現象,安裝和運輸極為方便。
(2)可以進行接線改變,以為三相試驗提供方便。通過改接的實現,能夠使變壓器進行相互的并聯,進而進行大負荷電流的供給。實現三相試驗接線的改接時,能夠使相應的電壓進行降低。
(3)如果需要試驗變壓器的電壓處于較低狀態時,則可以只選用其中的某一兩臺變壓器進行,能夠有效的降低電壓且不至于出現電源發動機激磁過小的狀況,操作相對方便簡單。并且在串級變壓器臺數減少的基礎上,能夠使總試驗過程中回路短路的電抗有效降低。
(4)因為結構方式的問題,每一臺變壓器也可以單獨出來實現各自具體的使用,這就會造成工作地點和范圍的增多,并且如果其中的某一臺出現故障時,并不會影響整體的正常操作,能夠有效的實現損失的。
 
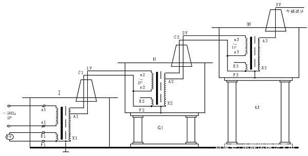
串級試驗變壓器的接線如下圖:
 
 
當兩臺試驗變壓器串級使用時,第一級與第二級試驗變壓器容量之比是2:1,總容量是第一級容量,總電壓是兩臺試驗變的最高輸出電壓之和,那么輸出電流就是總容量與總電壓之比。例如:5kVA/50kV與3kVA/50kV兩臺試驗變串級使用時,總容量為5kVA,總電壓為100kV,輸出電流就是5kVA/100kV也就是50mA。
三臺試驗變壓器串級使用,例如上述型號分別是10kVA/50kV、5kVA/50kV、3kVA/50kV,那么三臺容量之比就是3:2:1,總容量同樣也是第一級試驗變壓器容量10kVA,而總電壓就是三臺試驗變壓器的電壓之和,也就是說總電壓輸出為150kV。
故上述問題可以很清晰的回答出來,因為三臺都是同50kV電壓等級的試驗變壓器,所以總電壓就是三臺試驗變壓器的輸出電壓之和150kV。而容量是遵從3:2:1的關系。那么總容量就是第一級試驗變壓器的容量,而操作臺是與整套系統的容量一致的,所以操作臺應配置與第一級試驗變壓器同容量的10kVA。
不過我們需要注意的是,不管是兩級或是三級串,輸出電流嚴禁超出最后一級的額定電流。
 
凱迪正大試驗變壓器使用注意事項
1)試驗變壓器應和操作箱(臺)配套使用,操作箱(臺)的使用方法,請詳細參閱操作箱(臺)使用說明書。
2)變壓器外殼、高壓尾須接地。為確保安全,試驗人員和其它被試驗設備與試驗變壓器之間須保持足夠的距離。
3)試驗變壓器的輸出一般應串接限流電阻以保護設備安全。

上一篇:凱迪正大35kV及以下交聯電纜油杯終端(全系列)

下一篇:凱迪正大交聯電纜試驗油杯(35KV)用途及實驗要求

武漢凱迪正大公司